










在项目的实际接触中,很多客户都有一个疑问,就是虹吸排水到底怎么安装?其实一份虹吸排水安装示意图就能很好地、全面地、直观地回答这个问题。本文将为您讲解虹吸排水安装方法。
首先是虹吸雨水斗的安装。根据屋面的不同,虹吸雨水斗安装也不同,主要分为钢天沟虹吸雨水斗安装和混凝土屋面虹吸雨水斗安装。方法如下图。

图1混凝土屋面虹吸雨水斗安装

图2钢结构天沟虹吸雨水斗安装
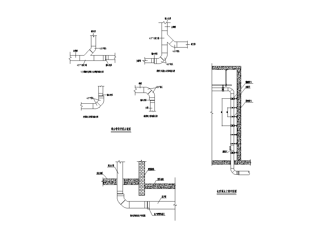
其次是虹吸管道的安装,虹吸排水管道一般采用二次悬吊的安装方式,如下图。在实际安装过程中有一些注意事项:
1.二次悬吊的安装方式适用于HDPE管道的安装;
2.HDPE管道的连接宜采用热熔对焊连接或电熔连接,尽量避免采用法兰连接;
3.严格按照规范要求安装锚固装置。
4.虹吸排水系统都是通过准确计算的,严格按图施工,如有改动,必须经过二次计算。

图3虹吸管道安装图解1

图4虹吸管道安装图解2

图5虹吸管道安装图解3
附:虹吸排水安装涉及的相关规范。
1.《CJJ 142-2014 建筑屋面雨水排水系统技术规程》
2.《CJJT 29-2010 建筑排水塑料管道工程技术规程》
3.《CECS183-2015虹吸式屋面雨水排水系统技术规程附条文》
4.《CJT 245-2007 虹吸雨水斗》
5.《CJT250-2018_建筑排水用高密度聚乙烯管材及管件》
等